| 土地・建物売り物件H (値下げ) |
物件番号 KU109 図面タッチで拡大 |
|
 |
| ホームページ先頭へ |
物件位置図へ |
| ※現地を必ずご覧ください「現況と図面情報に差異がある場合は現況が優先となります」弊社スタッフがご案内します |
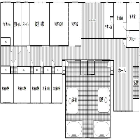
| 物件種目 |
温泉旅館 (土地・建物) |
価格 |
3,200万円 (値下げ)相談 |
| 所在地 |
茅部郡森町字濁川231-10 |
築年月 |
平成11年8月新築 |
| 土地面積 |
5740.27u(1736.4坪) |
間取り内訳 |
客室5部屋・大広間・浴槽男女別・厨房・ホール他 |
| 土地権利 |
所有権 |
建物構造 |
木造亜鉛メッキ鋼板葺平屋建 |
| 地目 |
宅地 |
延床面積 |
総床面積804.94u |
| 用途地域 |
ー |
都市計画 |
非線引(都市計画外) |
| 道路幅員 |
西側6.0m幅 |
建ぺい率 |
ー |
| 設備 |
|
容積率 |
ー |
| 情報登録日 |
| |